パルロイヤルアレフ赤坂 東京都港区赤坂7丁目(赤坂駅徒歩9分)の中古マンション|14,990万円|分譲マンション情報|ララハウス株式会社

中古マンション

パルロイヤルアレフ赤坂
お気に入り
価格 14,990万円値下がり ローンシミュレーション
所在地 東京都港区赤坂7丁目
この地域周辺の物件を見る
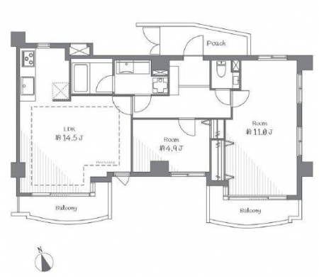
専有面積 67.59u 間取り 2LDK (LDK14.5/洋室11/洋室4.9)
交通
東京メトロ千代田線 赤坂 徒歩9分
東京メトロ千代田線 乃木坂 徒歩9分
管理費等 19,670円 修繕積立金 35,820円
所在階/階数 2階/地上3階 地下1階建 築年月 1997年7月築 バルコニー面積 9.66m²
ここがおすすめ

【南向き×2面バルコニーにつき日当たり良好】
◇3駅2路線利用可能な好立地
◇リノベーションされた綺麗な室内


  • 現地外観写真 -
  •  -
  • 周辺環境 赤坂駅(東京メトロ 千代田線) 徒歩9分。 710m
  • 周辺環境 青山一丁目駅(東京メトロ 銀座線) 徒歩12分。 930m
  • 周辺環境 赤坂サカス 徒歩9分。 680m
  • 周辺環境 赤坂BizタワーSHOPS&DINING 徒歩10分。 730m
  • 周辺環境 東京ミッドタウン 徒歩12分。 960m
  • 周辺環境 成城石井赤坂Bizタワー店 徒歩10分。 730m
  • 周辺環境 ビオセボン赤坂店 徒歩8分。 570m
  • 周辺環境 まいばすけっと青山一丁目店 徒歩12分。 900m
  • 周辺環境 ファミリーマート赤坂パークビル店 徒歩4分。 280m
  • 周辺環境 スギ薬局赤坂店 徒歩6分。 480m
お問い合わせ、資料請求、見学のお申し込みはこちらから

電話をかける(携帯・PHS可)
0120-60-1122
「ホームページを見た」とお伝え下さい。

お問い合わせ番号をお伝えください
RHS-B01198-043710

内見予約
お問合せ

セールスポイント

特徴
  • シャワー
  • コンロ一口
  • コンロ二口
  • コンロ三口
  • バルコニー
  • 角部屋
  • プライスダウン
セールスコメント ◆現地へのご案内受付中です♪
◆港区・中央区・千代田区のマンションを始め、ご希望の不動産の条件を遠慮なくお話し下さい。
 ララハウスのホームページをご覧ください。
(「ララハウス青山支店」で検索!)
◆【0120-60-1122】へお気軽にお問い合わせください。
◆電車でお越しの方、現地までの行き方が不安という方、ご希望ございましたら付近までお迎えにあがります。お気軽にご相談くださいませ。






2026/01/30

物件概要

採光面 取引態様 仲介
現況 空家 引渡し 相談
総戸数 35戸 構造 RC造
テラス面積 - 専用庭面積 -
駐車場 有:38,000円/月 駐輪場 -
建物権利 - 土地権利 所有権
用途地域 第一種中高層住居専用地域 - - 管理態様 管理形態:委託(通勤)
管理組合:あり
管理会社:日本ハウズイング(株)
情報更新日 2026年05月19日 次回更新日 2026年06月02日
※各種情報と差異がある場合は現況優先となります

【備考】
2026/01/30

学区情報

小学校区 港区立赤坂小学校
(東京都港区)
この学区の他の物件を見る
中学校区 赤坂中学校
(東京都港区)
この学区の他の物件を見る
※物件情報の学区情報について
当サイト物件情報に記載されております通学区域(学区)情報は、国土数値情報ダウンロードサービスが提供する小学校区データ【2016年度】及び中学校区データ【2016年度】を元に加工したものですので、記載情報が現在の学区域と異なる場合がございます。
国土数値情報ダウンロードサービスのWEBサイト上で記述通り、データは必ずしも正確とは言えません。また、通学区域(学区)は毎年見直しの対象となりますので、そちらを踏まえ学区情報は参考としてご活用下さい。
お問い合わせ、資料請求、見学のお申し込みはこちらから

電話をかける(携帯・PHS可)
0120-60-1122
「ホームページを見た」とお伝え下さい。

お問い合わせ番号をお伝えください
RHS-B01198-043710

内見予約
お問合せ

この物件でローンシミュレーションする

価格 万円
年利率
ボーナス払い 返済年数
頭金 直接入力する 万円

毎月のご返済額

ボーナス(×年2回)

物件価格

14,990万円
※返済金額はあくまでも目安です。

電話でお問い合わせ
ララハウス株式会社 青山支店

電話をかける

0120-60-1122

※「ホームページを見た」とお伝えください。
お問い合わせ番号をお伝えください
RHS-B01198-043710

お問い合わせ

お問い合わせ内容
お問合せ内容必須
【備考欄】
詳細な見学ご希望時間、ご質問、ご希望条件などがございましたらお聞かせ下さい。
(2000文字以内)
お客様情報
お名前必須
連絡先必須 メールアドレス

※ご記入いただいたメールアドレス宛てに、お問合せ内容の確認メールをお送りいたします。
※Yahoo!メールなどのフリーメールをご利用の場合、迷惑メールフォルダに入る場合があります。
 迷惑メールのフォルダ・設定等をご確認下さい。
電話番号
FAX(任意)
個人情報の取扱いについてを必ずご確認ください。内容に同意の上、確認画面へお進み下さい。

お気軽にお問い合わせください

0120-60-1122
物件番号 RHS-B01198-043710
※「ホームページを見た」
とお伝え下さい。

店舗紹介

店舗写真

ララハウス青山支店 〒107-0061
東京都港区北青山3丁目15-9 AOYAMA101ビル 1F
TEL : 0120-60-1122
営業時間 : 9:00〜20:00
定休日 : 水曜日

最寄り駅 東京メトロ銀座線・千代田線
表参道駅 徒歩3分